BIM (Building Information Modeling)
เทคโนโลยีที่เปลี่ยนโลกการก่อสร้างให้แม่นยำ ยั่งยืน และมีประสิทธิภาพ
ในยุคที่อุตสาหกรรมก่อสร้างต้องเผชิญกับความซับซ้อนของข้อมูล ปัญหางานซ้ำซ้อน และการควบคุมงบประมาณที่ท้าทาย เทคโนโลยี BIM (Building Information Modeling) จึงกลายเป็นเครื่องมือสำคัญที่ช่วยยกระดับการทำงานของทุกฝ่ายในโครงการ ไม่ว่าจะเป็นเจ้าของงาน สถาปนิก วิศวกร หรือผู้รับเหมา
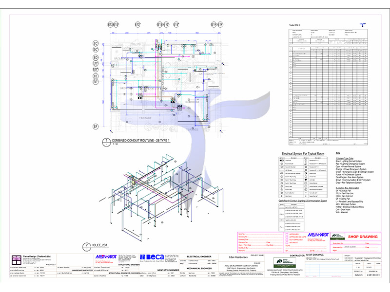
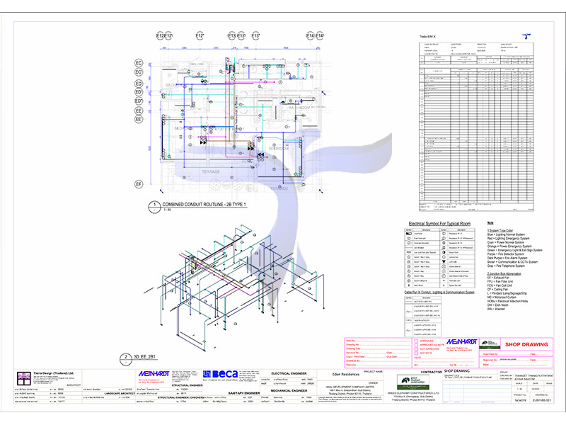
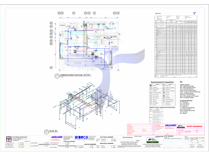
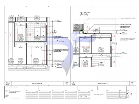
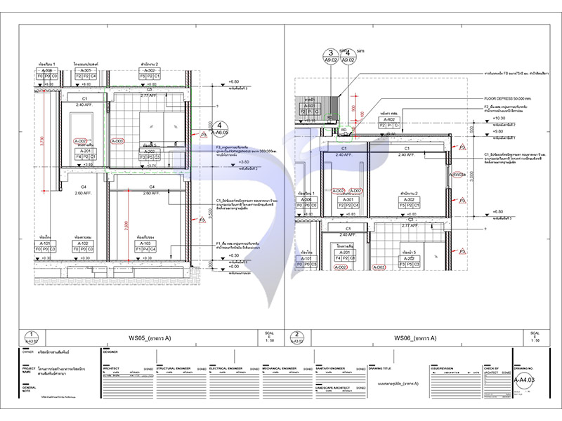
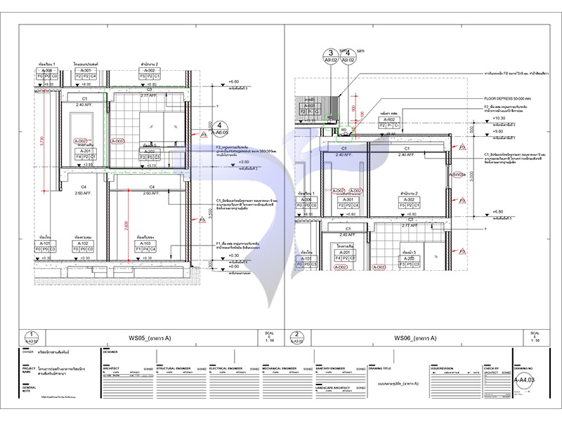
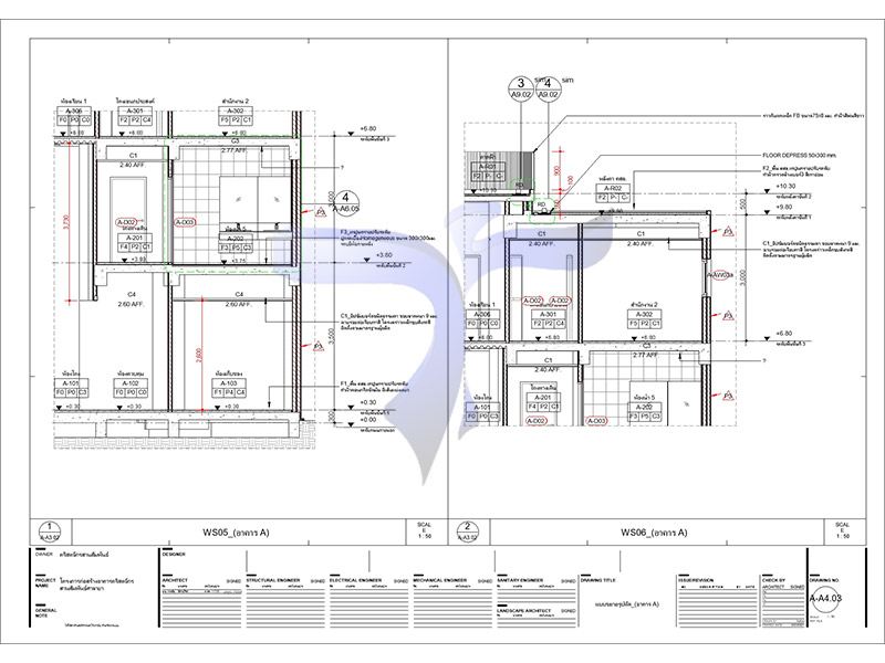
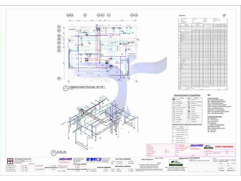
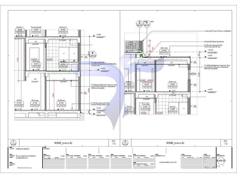
BIM คือกระบวนการสร้างและบริหารจัดการ “ข้อมูลดิจิทัลของอาคาร” ผ่านแบบจำลอง 3 มิติ (3D Model) ที่รวบรวมรายละเอียดขององค์ประกอบทุกส่วน ตั้งแต่โครงสร้าง ระบบไฟฟ้า ระบบประปา จนถึงวัสดุที่ใช้จริงในงานก่อสร้าง แบบจำลองนี้ไม่เพียงช่วยให้เห็นภาพโครงการเสมือนจริงก่อนเริ่มก่อสร้าง แต่ยังสามารถเชื่อมโยงข้อมูลด้านเวลา (4D) และต้นทุน (5D) เพื่อใช้วางแผน ควบคุม และบริหารโครงการได้อย่างแม่นยำ
BIM มีประโยชน์หลายอย่าง เช่น ช่วยลดความผิดพลาดในแบบ ลดการแก้งานหน้างาน และเพิ่มความร่วมมือระหว่างทีมต่าง ๆ เมื่อทุกฝ่ายเข้าถึงข้อมูลเดียวกันผ่านโมเดล BIM ทำให้การสื่อสารและการตัดสินใจเป็นไปอย่างรวดเร็วและมีประสิทธิภาพมากขึ้น ส่งผลให้โครงการเสร็จตามกำหนด และประหยัดต้นทุนได้จริง
เทคโนโลยี BIM ในประเทศไทย กำลังได้รับการยอมรับอย่างแพร่หลายมากขึ้นในวงการออกแบบและก่อสร้าง โดยเฉพาะในโครงการขนาดใหญ่ของภาครัฐและเอกชน ซึ่งต้องการระบบที่ช่วยตรวจสอบคุณภาพงานได้ตั้งแต่ต้นจนจบ เทสลา บิม คอนซัลท์ จำกัด ในฐานะผู้เชี่ยวชาญด้าน BIM ครบวงจร พร้อมให้คำปรึกษา พัฒนาโมเดล 3 มิติ อบรมบุคลากร และนำเทคโนโลยีนี้ไปประยุกต์ใช้ในองค์กรอย่างเหมาะสม
BIM จึงไม่ใช่แค่ซอฟต์แวร์ แต่คือแนวคิดใหม่ของการทำงานร่วมกันในยุคดิจิทัล ที่ทำให้งานออกแบบและก่อสร้างมีความโปร่งใส ประสิทธิภาพสูง และตอบโจทย์อนาคตของอุตสาหกรรมได้อย่างแท้จริง
ติดต่อสอบถามรายละเอียด
บริษัท เทสลา บิม คอนซัลท์ จำกัด
คือพันธมิตรด้านเทคโนโลยีการก่อสร้าง ที่พร้อมให้บริการ BIM Solution แบบครบวงจร ครอบคลุมตั้งแต่การให้คำปรึกษา ออกแบบ เขียนแบบ 3 มิติ บริหารโครงการ ไปจนถึงการอบรมและจำหน่ายซอฟต์แวร์ลิขสิทธิ์แท้จาก Autodesk เรามุ่งเน้นช่วยให้องค์กร สถาปนิก วิศวกร ผู้รับเหมา และเจ้าของโครงการ สามารถยกระดับประสิทธิภาพการทำงาน ลดความผิดพลาด และควบคุมงบประมาณได้อย่างแม่นยำ

ด้วยประสบการณ์มากกว่า 20 ปีในวงการ BIM ทีมที่ปรึกษาของเราพร้อมสนับสนุนทุกขั้นตอนของการพัฒนาโครงการ ตั้งแต่การวางแผนออกแบบ ไปจนถึงการก่อสร้างจริง เพื่อให้ทุกโครงการสามารถก้าวเข้าสู่ยุค Digital Construction ได้อย่างมั่นใจและยั่งยืน
เราพร้อมเป็นส่วนหนึ่งในการขับเคลื่อนองค์กรของคุณให้เติบโตด้วยเทคโนโลยี BIM-เครื่องมือสำคัญที่เปลี่ยนวิธีคิดและการทำงานของวงการก่อสร้างในอนาคต